Remonstranten Eindhoven

Ons
gebouw

Onze kerk, onze geschiedenis. Op 25 september 1931 werd in Eindhoven de Remonstrantse Kring opgericht. In het begin waren we nog klein, zonder eigen gebouw, maar rijk aan energie en geloof in de toekomst. Tien jaar later, op 30 maart 1941, groeiden we uit tot een volwaardige gemeente.


Afbeelding Afbeelding Afbeelding

De eerste jaren zonder eigen kerk
In onze beginjaren hielden we de diensten op verschillende plekken in de stad. Eerst in gebouw Rehoboth, achter het Lodewijk Napoleonplein. Al snel verhuisden we naar de Hervormde Kerk in de Ten Hagestraat, en daarna naar “De Opbouw” aan de Smalle Haven. Die plekken waren waardevol, maar het verlangen naar een eigen huis groeide.

De stap naar een eigen gebouw
In 1939 besloten we een eigen kerk te bouwen. De oorlog gooide roet in het eten, maar in 1949 kregen we aan de Dommelhoefstraat een prachtig stuk grond, rustig gelegen en toch dicht bij het centrum. Architect ir. G. Treep ontwierp een gebouw met een bijzondere uitstraling. Op 18 juni 1950 hielden we er onze eerste dienst, het eerste Remonstrantse kerkgebouw in het zuiden van Nederland.

Een bijzonder raam met een verhaal
Bij het ontwerp kreeg de architect een speciale opdracht: in de nieuwe kerk moest plaats zijn voor een glas-in-loodraam dat in 1937 te zien was geweest op de wereldtentoonstelling in Parijs, in het paviljoen “Religieuze Kunst”. Het raam, gemaakt door kunstenares Erna van Osselen, toont een wijnrank met de woorden uit Johannes 15: “Ik ben de ware wijnstok…”. Dankzij de zus van de kunstenares, zelf gemeentelid, schonk het Ministerie van Onderwijs, Kunsten en Wetenschappen het raam in 1948 aan onze gemeente.

Verbouwing en groei
Al na veertien jaar besloten we tot een grote uitbreiding. In 1964 kwam er een ontmoetingsruimte bij, toen nog een vrij nieuw idee voor een kerk, samen met extra kamers, een grotere keuken en vijftig extra zitplaatsen. De nieuwe gevel, in organische stijl, kreeg een klokkentoren en opvallende ramen.

In 1988 schonk de heer J. van IJzeren ons een nieuwe kerkklok, gegoten bij Eijsbouts in Asten. Op de klok staat: “Waar de Geest van de Heer is, daar is bevrijding”, samen met een wijnrankmotief dat verwijst naar ons glas-in-loodraam.

In de jaren daarna veranderde ook het interieur. De stenen preekstoel en houten banken maakten plaats voor comfortabele stoelen en een houten avondmaalstafel. We vernieuwden bordjes, keuken, verlichting, geluidsinstallatie en maakten de kerk toegankelijker met onder andere een rolstoelingang en aangepast toilet. In 2008 kwam er ook een beamer en internet, klaar voor de toekomst.

Het orgel
Ons orgel werd in 1951 gebouwd door de firma L. Verschueren uit Heythuysen. Bij de verbouwing van 1964 werd het verplaatst en uitgebreid om de klank te verbeteren. Sindsdien begeleidt het talloze diensten en concerten.

Kunst in en om de kerk
Naast het glas-in-loodraam heeft onze kerk meer kunstwerken met een verhaal. Op de buitendeuren prijkt een bronzen reliëf van schenkende en ontvangende handen, gemaakt rond 1950 door Dick Stins, geïnspireerd door een preek van prof. dr. G.J. Sirks.

In de hal vind je “Tegenstellingen” (1980) van Wim Pasman, en een houten ‘huisje’ van kunstenaarsduo Albert Goederond en Patty Struik (LaSalle). Aan de muur van de kerkzaal hangt een wandkleed van Rian Rensen-Bronkhorst (1973), “De eerste dag van de schepping”, waarop zon, aarde en maan uit de chaos ontstaan.

Ter ere van ons 80-jarig jubileum (2011) plaatsten we een kunstwerk van Lonneke Gordijn: Fragile Future. Een netwerk van bronzen strips met kleine LED-lichtjes, beplakt met paardebloempluis, dat licht en poëzie brengt in de kerkzaal.

Buiten onze muren
Sinds eind jaren vijftig valt ook ’s-Hertogenbosch onder ons ressort. In 1960 ontstond daar een werkgroep, die nog steeds bestaat. Samen met de Doopsgezinden houden we eens per maand een dienst in de Protestantse Kerk in Engelen, een kerk uit 1615, sinds 1989 een rijksmonument.

Dit is ons verhaal, een geschiedenis van zoeken, bouwen, vernieuwen en koesteren. Een verhaal van stenen en kunst, maar vooral van mensen die samen gemeente zijn, toen en nu.

Afbeelding Afbeelding Afbeelding Afbeelding Afbeelding
Afbeelding

Locatie verhuur

De Remonstrantse kerk aan de Dommelhoefstraat 1A in Eindhoven is een bijzondere plek. Niet alleen voor vieringen en ontmoetingen binnen onze eigen gemeenschap, maar ook voor mensen en organisaties van buiten. We vinden het belangrijk om onze deuren open te zetten – ook letterlijk. Daarom stellen we ons kerkgebouw graag beschikbaar voor bijvoorbeeld lezingen, concerten, kooroptredens, workshops of andere bijeenkomsten met een inhoudelijke of culturele insteek. Wil je meer weten of een ruimte reserveren? Neem dan gerust contact op met onze kerkmeester:

W. Stoppelenburg
Hondsruglaan 59
5628 DB Eindhoven
✆ 06 103 304 40 of 040 241 1992
✉ w.stoppelenburg@kpnplanet.nl

Praktisch
We verhuren het gebouw per dagdeel:

Ochtend: 08.00 – 13.00 uur
Middag: 13.00 – 18.00 uur
Avond: 18.00 – 23.00 uur

Richtprijs per dagdeel: €175 (excl. verwarmingskosten)
We gaan graag in gesprek over de prijs wanneer er sprake is van maatschappelijk belang of regelmatig gebruik.
Bij verhuur is er geen begeleiding aanwezig vanuit de gemeente. Je gebruikt het gebouw zelfstandig en laat het achter zoals je het aantrof.

Wat bieden wij?
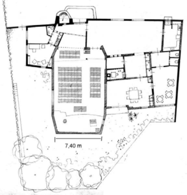
Je huurt in principe het volledige gebouw, inclusief gebruik van onderstaande ruimtes en faciliteiten (zie ook de plattegrond):

1. Grote Kerkzaal
Geschikt voor max. 100 personen. Flexibel in te richten (losse stoelen, grotendeels op te bergen)
Beschikbaar: orgel, piano (klassiek en elektrisch), geluidsinstallatie, ringleiding, wifi, audioverbinding voor laptop
Eventueel gebruik van beamer en laptop mogelijk
Podium aanwezig
Neutrale uitstraling zonder nadrukkelijke religieuze symbolen
Bijzonder kunstwerk aan de wand: Fragile Future van Lonneke Gordijn

2. Vergaderzaal
Voor bijeenkomsten tot ca. 20 personen
Ideaal voor vergaderingen, lezingen in klein gezelschap of werksessies

3. Grote Hal
Ruime ontvangsthal
Aangrenzend aan keuken
Vaak gebruikt als pauzeruimte bij concerten of bijeenkomsten

4. Keuken
Voorzien van oven, magnetron, 4-pits gasstel, koelkast en bistro-vaatwasser
Koffie- en theeservies aanwezig voor ca. 100 personen
Gebruik in overleg, met de afspraak alles schoon en netjes achter te laten

5. Jeugdruimte
Extra ruimte die ingezet kan worden voor parallelle activiteiten, kinderopvang of kleinere bijeenkomsten

Afbeelding
plattegrond gebouw
Afbeelding

Cookie verklaring

Deze website gebruikt cookies.

Om uw bezoek aan onze website nóg makkelijk en persoonlijker te maken zetten we cookies (en vergelijkbare technieken) in. Met deze cookies kunnen wij (en derde partijen) uw gedrag op onze website volgen en analyseren. U kunt de cookies accepteren door op 'Accepteren' te klikken.