Remonstranten Eindhoven

 
Verhuur

Afbeelding

Locatie verhuur

De Remonstrantse kerk aan de Dommelhoefstraat 1A in Eindhoven is een bijzondere plek. Niet alleen voor vieringen en ontmoetingen binnen onze eigen gemeenschap, maar ook voor mensen en organisaties van buiten. We vinden het belangrijk om onze deuren open te zetten – ook letterlijk. Daarom stellen we ons kerkgebouw graag beschikbaar voor bijvoorbeeld lezingen, concerten, kooroptredens, workshops of andere bijeenkomsten met een inhoudelijke of culturele insteek. Wil je meer weten of een ruimte reserveren? Neem dan gerust contact op met onze kerkmeester:

W. Stoppelenburg
✆ 06 103 304 40 of 040 241 1992
✉ w.stoppelenburg@kpnplanet.nl

Praktisch
We verhuren het gebouw per dagdeel:

Ochtend: 08.00 – 13.00 uur
Middag: 13.00 – 18.00 uur
Avond: 18.00 – 23.00 uur

Richtprijs per dagdeel: €175 (excl. verwarmingskosten)
We gaan graag in gesprek over de prijs wanneer er sprake is van maatschappelijk belang of regelmatig gebruik.
Bij verhuur is er geen begeleiding aanwezig vanuit de gemeente. Je gebruikt het gebouw zelfstandig en laat het achter zoals je het aantrof.

Wat bieden wij?
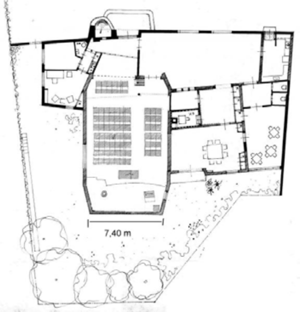
Je huurt in principe het volledige gebouw, inclusief gebruik van onderstaande ruimtes en faciliteiten (zie ook de plattegrond):

1. Grote Kerkzaal
Geschikt voor max. 100 personen. Flexibel in te richten (losse stoelen, grotendeels op te bergen)
Beschikbaar: orgel, piano (klassiek en elektrisch), geluidsinstallatie, ringleiding, wifi, audioverbinding voor laptop
Eventueel gebruik van beamer en laptop mogelijk
Podium aanwezig
Neutrale uitstraling zonder nadrukkelijke religieuze symbolen
Bijzonder kunstwerk aan de wand: Fragile Future van Lonneke Gordijn

2. Vergaderzaal
Voor bijeenkomsten tot ca. 20 personen
Ideaal voor vergaderingen, lezingen in klein gezelschap of werksessies

3. Grote Hal
Ruime ontvangsthal
Aangrenzend aan keuken
Vaak gebruikt als pauzeruimte bij concerten of bijeenkomsten

4. Keuken
Voorzien van oven, magnetron, 4-pits gasstel, koelkast en bistro-vaatwasser
Koffie- en theeservies aanwezig voor ca. 100 personen
Gebruik in overleg, met de afspraak alles schoon en netjes achter te laten

5. Jeugdruimte
Extra ruimte die ingezet kan worden voor parallelle activiteiten, kinderopvang of kleinere bijeenkomsten

Afbeelding
plattegrond gebouw
Afbeelding

Cookie verklaring

Deze website gebruikt cookies.

Om uw bezoek aan onze website nóg makkelijk en persoonlijker te maken zetten we cookies (en vergelijkbare technieken) in. Met deze cookies kunnen wij (en derde partijen) uw gedrag op onze website volgen en analyseren. U kunt de cookies accepteren door op 'Accepteren' te klikken.